
Sale
Loch Damph fishing rights, land and planning permission
A truly exceptional and rare chance to purchase fishing rights on Loch Damph in Scotland, along with a plot of land benefiting from planning permission for the erection of a boat storage building.
Key Facts
Included in the sale is a shoreside plot on Loch Damph’s edge, complete with approved plans for a boat house and permission to fish on the loch, including the right to moor a single boat. Planning reference number 20/01346/FUL has been issued, and a commencement notice has been submitted to the local authority (details available on www.highland.gov.uk) to enable the purchaser to complete the building within planning rules.
Loch Damph is known for it’s Brown Trout and and for years has attracted anglers who enjoy fly fishing, wishing to catch that specimen of a lifetime. As the region is primarily characterised by expansive estates and landholdings, this sale presents an exceedingly uncommon opportunity in a breathtaking West Highland setting. The property would suit an individual or perhaps a syndicate or club.

Fishing rights for sale on Loch Damph, Torridon
About the fishing
Loch Damph stretches for over 3 ½ miles and is renowned for offering some of Scotland’s finest brown trout angling. In a report that Wester Ross Fisheries Trust produced in 2006 -2007 it references a large brown trout that was caught in Loch Damph by Tony Hutchinson on the 23rd May weighing in at 4.5kg (nearly 10lbs). There are a number of fly fishing websites that provide advice, catch reports and further detail about the fishing.
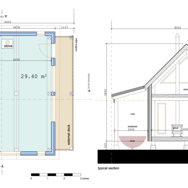
About the proposed boat shed
The planning permission and architects drawings and be viewed Highland.gov.uk website as part of the planning permission. The whole structure is lifted clear of the ground and beach top on low concrete walls to avoid risk of flood. It is unserviced. Other than securing the boat, the building is to be used as a day shelter for fishing. It is just under 30 sqm internally with the deck giving an additional area of 8m2 exterior covered space and 15m2 of covered boat shed.

Plans of boat shed which has planning approval

An artists impression of how the proposed boat shed could look.
About the area
Torridon is located on Scotland’s west coast, roughly 70 miles west of Inverness. The area attracts both mountaineers, with six Munros (Scottish mountains exceeding 3,000 ft) nearby, and those who appreciate natural beauty. The dramatic landscapes are iconic of the North West Highlands. The owner has provided their own video of the site and surrounding area which can be viewed on Youtube.
The village of Torridon and its surroundings offer amenities such as hotels, a shop and café, eateries, and a primary school. Inverness provides a comprehensive selection of commercial, retail, educational, and transport services, including a main line train station and an active airport with flights to destinations across the UK and Europe.
For directions, use What3words: ///simulator.salary.rounds
Want to get the latest properties?
If you would like to receive updates and notification on when new properties come to market, then why not sign up to receive our regular email
Want us to help you sell your property?
Do you have a property or fishery that you would like to list on this page? Just get in touch with our team now